Premium Restroom Trailers—Your Comfort, Our Priority
We specialize in the highest quality restroom trailers on the market. Independently owned and operated in Lake Barrington, IL. Available 24/7. We aim to provide First Class Trailers and First Class Service. Long term rental quotes available upon request.
GET QUOTEThe Upscale Alternative to Standard Porta Potties
Not every event calls for a standard portable restroom. When comfort, privacy, and presentation matter — whether it's a wedding, a corporate outing, a fundraiser, or a milestone celebration — our luxury restroom trailers deliver an experience that feels like stepping into a high-end indoor restroom. Each trailer is designed with elegant interiors, quality fixtures, and amenities your guests will notice and appreciate.
Our fleet includes trailers ranging from a 2-stall unit perfect for intimate gatherings up to our 7-stall trailer built to handle 400+ guests. Every trailer can operate completely off-grid with optional generator and onboard water, making them ideal for venues without hookups — remote farms, private estates, parks, and open-air venues throughout the Chicago area.
Popular Uses for Our Luxury Restroom Trailers
Weddings — Our most popular use case. Luxury trailers give your guests a comfortable, elegant restroom experience that matches the quality of every other detail at your wedding. Separate men's and women's stalls, climate control, ambient lighting, and music create an atmosphere that feels intentional. Many couples personalize the trailers with flowers, photos, and signage to carry their wedding theme throughout the entire venue. Learn more about our luxury restroom trailers for weddings.
Corporate events and company outings — When your company hosts an offsite event, the restroom facilities reflect on your brand. Our luxury trailers provide a polished, professional experience for employees, clients, and VIP guests.
Fundraisers and galas — Upscale events demand upscale facilities. Our trailers blend seamlessly into formal event settings and keep the guest experience consistent from start to finish.
Private parties and milestone celebrations — Graduation parties, anniversary celebrations, reunion weekends — any event where you want your guests to be comfortable and impressed.
What Sets Our Trailers Apart
All-season capability. Every trailer in our fleet is a 4-season unit rated for operation down to -30°F. Whether your event is in July or October, your guests will be comfortable.
Off-grid ready. Our trailers can operate completely off-grid with a rental generator and onboard water tank. No venue hookups required — perfect for remote locations.
Full-service delivery. We deliver, set up, and pick up your trailer on your schedule. Our team handles placement and makes sure everything is working before your first guest arrives.
Impeccably maintained. Every trailer is cleaned, sanitized, and fully stocked before every rental. We take pride in presenting trailers that look and feel like new.
Two Stall Luxury Restroom Trailer
Available March 1st, 2026. Please call (847) 387-4004 to reserve.
- Events up to 85
- Luxury interior
- Air conditioning
- On board music
- Premium accent lighting
- Can be run completely off grid
- 4 season trailer with -30 degrees operation possible
- Generator and on board water can be provided for additional charges.
Price and Fees:
- Weekend or 1 day rental $1250.00
- Generator rental: add $100.00
- Onboard Water: add $100.00
Delivery:
Delivery is calculated by the mile, one direction from zip code 60010. 1-20 MILES $200 THEN $7.00 PER MILE
Service Area:
Located in Lake Barrington, Illinois, we will deliver any distance within a 100 Mile radius. (at additional cost of $7.00 per mile one way)


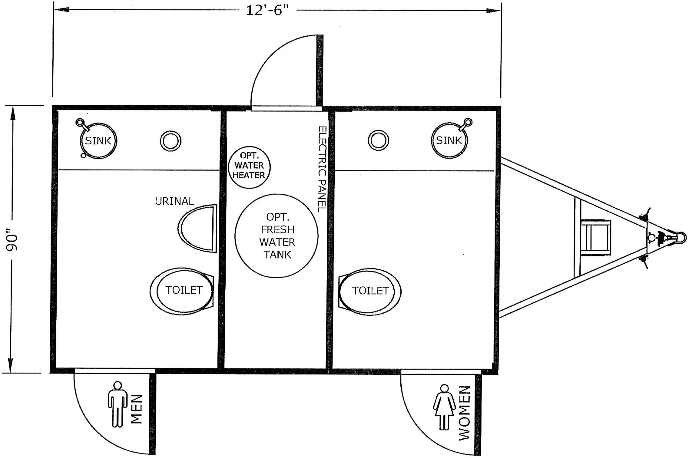
Four Stall Luxury Restroom Trailer
- Events up to 120
- Luxury interior
- Air conditioning
- On board music
- Premium accent lighting
- Can be run completely off grid
- 4 season trailer with -30 degrees operation possible
- Generator and on board water can be provided for additional charges.
Price and Fees:
- Weekend or 1 day rental $1850.00
- Generator rental: add $100.00
- Onboard Water: add $100.00
Delivery:
Delivery is calculated by the mile, one direction from zip code 60010. 1-20 MILES $200 THEN $7.00 PER MILE
Service Area:
Located in Lake Barrington, Illinois, we will deliver any distance within a 100 Mile radius. (at additional cost of $7.00 per mile one way)


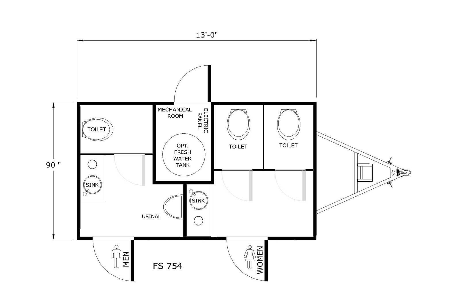
Five Stall Luxury Restroom Trailer
This is our most versatile trailer we offer. Capable of handling a crowd but also not too big.
- Events up to 300
- Luxury interior
- Air conditioning
- On board music
- Premium accent lighting
- All toiletries provided
- Can be run completely off grid
- 4 season trailer with -30 degrees operation possible
- Generator and on board water can be provided for additional charges.
Price and Fees:
- Weekend or 1 day rental $2250.00
- Generator rental: add $100.00
- Onboard Water: add $100.00
Delivery:
Delivery is calculated by the mile, one direction from zip code 60010. 1-20 MILES $200 THEN $7.00 PER MILE
Service Area:
Located in Lake Barrington, Illinois, we will deliver any distance within a 100 Mile radius. (at additional cost of $7.00 per mile one way)


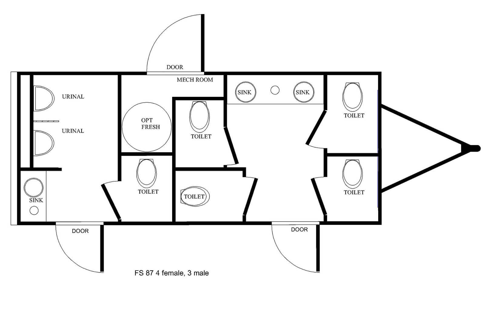
Seven Stall Luxury Restroom Trailer
Our largest trailer filled with features. In addition to our luxury decor on all our trailers, this trailer also features onboard bluetooth stereo and accent lighting to add that little extra touch.
- Events up to 400+
- Luxury interior
- Air conditioning
- On board music
- Premium accent lighting
- All toiletries provided
- Can be run completely off grid
- 4 season trailer with -30 degrees operation possible
- Generator and on board water can be provided for additional charges.
Price and Fees:
- Weekend or 1 day rental $2500.00
- Generator rental: add $100.00
- Onboard Water: add $100.00
Delivery:
Delivery is calculated by the mile, one direction from zip code 60010. 1-20 MILES $200 THEN $7.00 PER MILE
Service Area:
Located in Lake Barrington, Illinois, we will deliver any distance within a 100 Mile radius. (at additional cost of $7.00 per mile one way)



